首 页
关于我们
项目成果
城乡规划
风景园林
市政设计
建筑设计
勘察设计
项目策划
新闻中心
公司新闻
行业新闻
业务范围
联系我们
城乡规划
风景园林
市政设计
建筑设计
勘察设计
项目策划
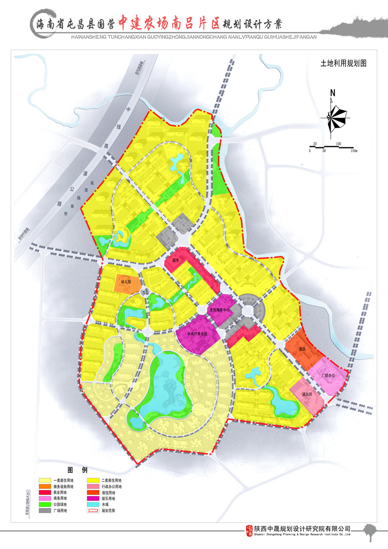
海南屯昌县国营中建农场南吕片区规划设计
发布时间:2019-04-11 点击量: 1256 次
主创团队:
规划主创团队
服务类型:
详细规划
项目地址:
海南省屯昌县
项目时间:
2016